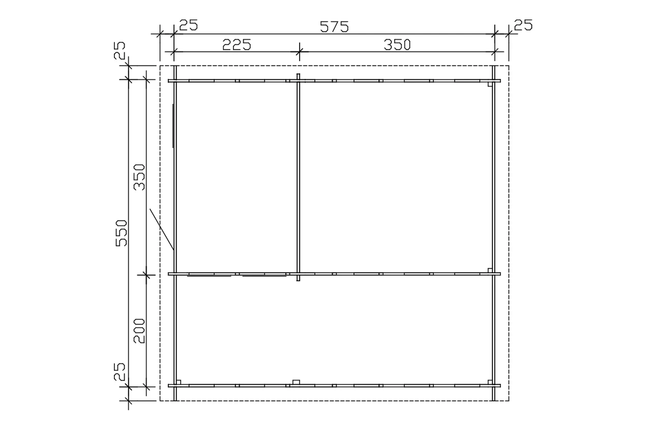
Laius
575
cm
Sügavus
550
cm
Pindala
31.625
m2
Külgseina kõrgus
256
cm
Põrand
19
mm
Katuseharja kõrgus
356
cm
Katuse pindala
42
m2
Katuselaudis
19
mm
Bituumenist katusekate komplektis
Ei
Katusekalle
17
°
Katuse üleulatus ees
25
cm
Katuse üleulatus külgedel/taga
25
cm
Panipaiga mõõdud
225x350
cm
Ukse mõõt
85x192
cm
Akna mõõt
(3x) 77x25
cm
Ehitusluba vajalik
Jah
Paki mõõdud (P x L x K)
600
×
120
×
110
cm
Paki kaal
2340
kg
Tellimiskood
761326
Standardkomplekt
