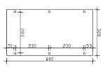
Laius
320
cm
Sügavus
600
cm
Pindala
19.2
m2
Esiseina kõrgus
255
cm
Tagaseina kõrgus
275
cm
Katuse pindala
20
m2
Katuselaudis
19
mm
Bituumenist katusekate komplektis
Ei
Katusekalle
2
°
Ehitusluba vajalik
Ei
Paki mõõdud (P x L x K)
320
×
120
×
42
cm
Paki kaal
635
kg
Tellimiskood
233205
Standardkomplekt
